Neubau eines Wohnhauses in Klein Nordende

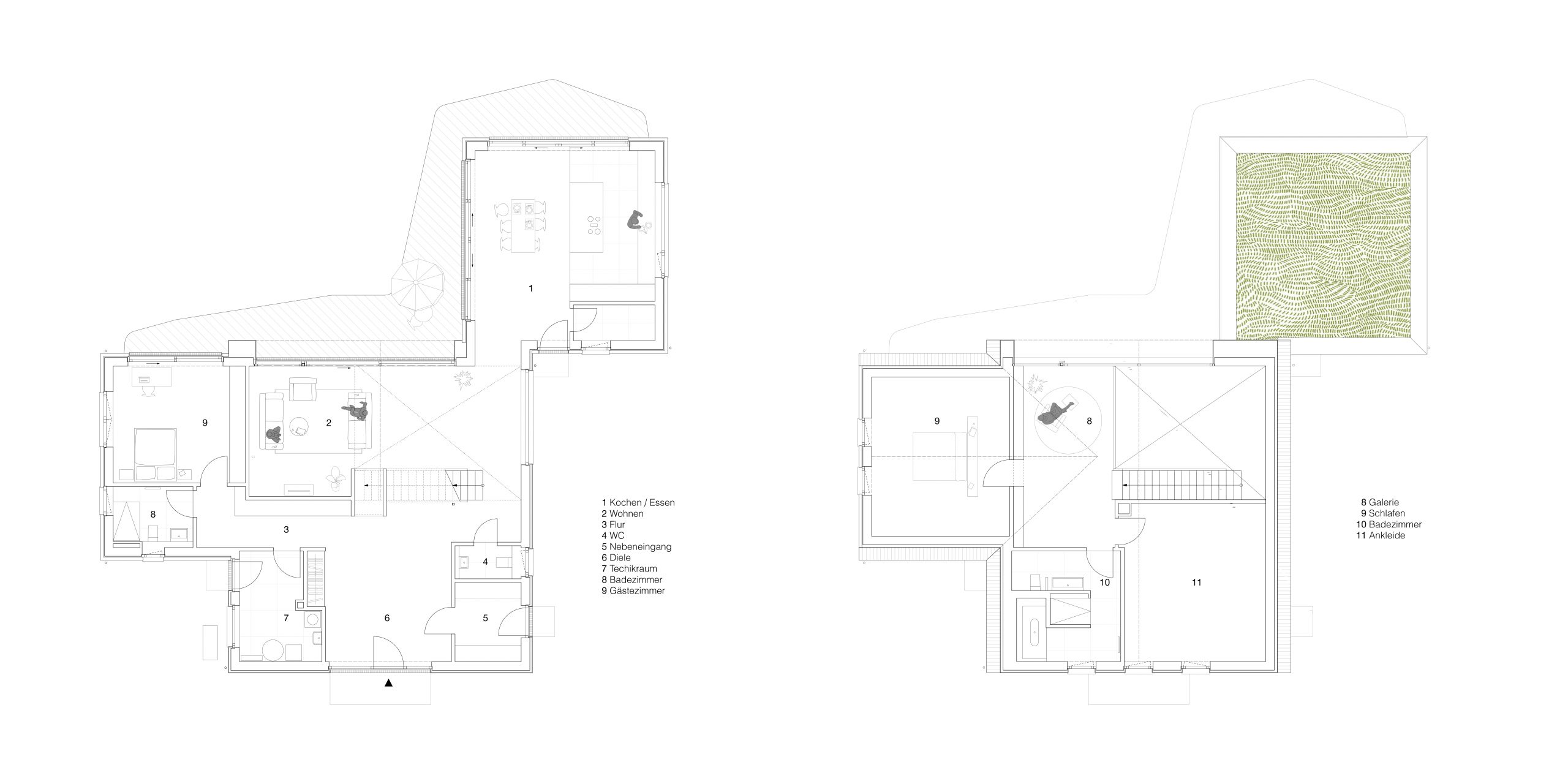
Neubau eines Wohngebäudes als Ersatzgebäude für ein altes Wohn- und Wirtschaftsgebäude. Die Kubatur und Abmessungen des alten Bestandsgebäudes mussten für den Ersatzbau übernommen werden. Innerhalb dieser vorgebenen Gebäudehülle wurden die Nutzerwünsche nach einem offenen Grundriss mit Galerie umgesetzt. Die Mischfassade aus einem Verblendmauerwerk und einer Holzfassade erinnert noch an die Materialität des alten Gebäudes. Das Haus wird in Holzrahmenbauweise mit Holzfaserdämmung errichtet.

Nutzung
Fläche
Planung
Fertigstellung
Bauherr

Wohngebäude
378 m2 BGF
LPH 5-8
2024
privater Bauherr

zurück zur Projektübersicht