Neubau eines Vereinshauses in der Memellandallee
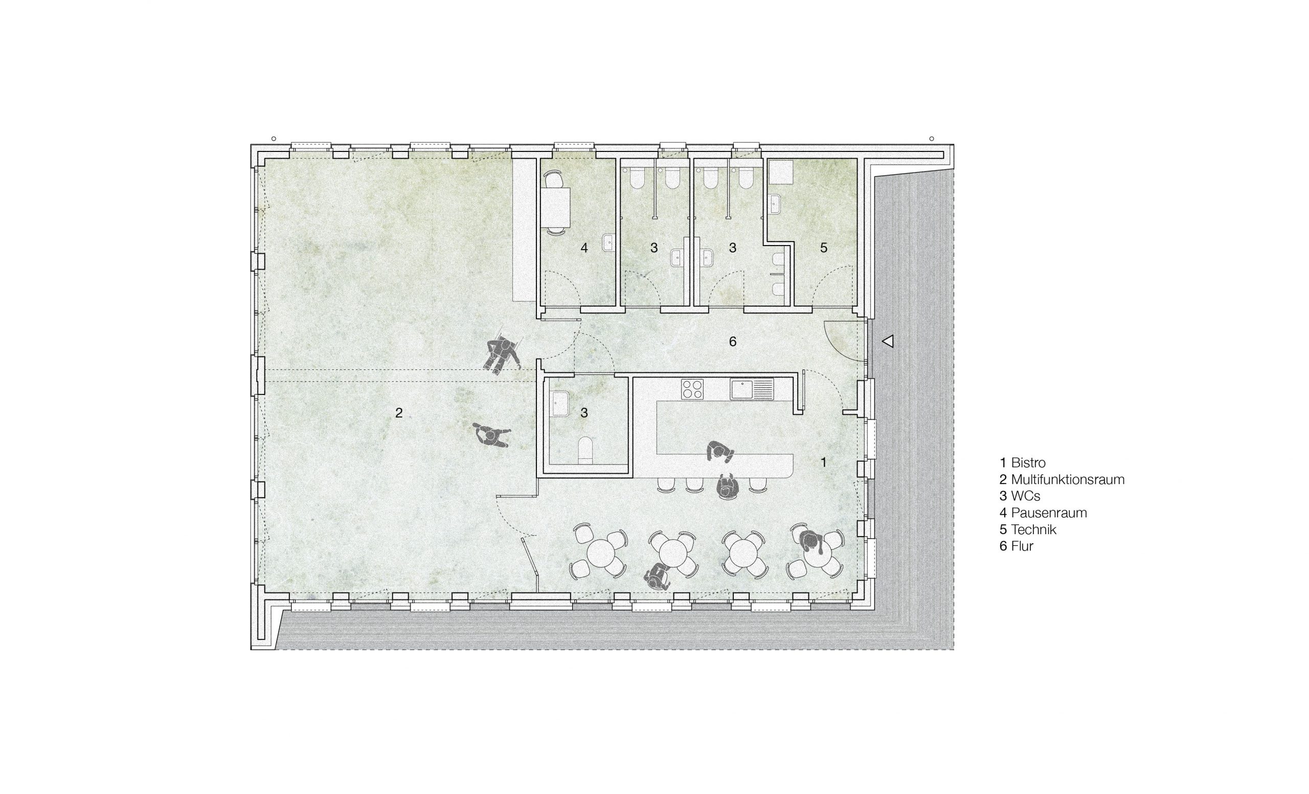
Für den Altonaer Sportverein VSK Blau-Weiss Ellas e.V. haben wir ein Vereinshaus in Massivbauweise geplant. Das Grundstück befindet sich in Altona-Nord auf einer Sportplatzfläche. Diese Sportplatzfläche war Teil eines ehemaligen Vergnügungspark aus dem Anfang des 20. Jahrhunderts, dem Lunapark. Der Verein VSK Blau Weiss Ellas ist ein multikultureller Verein mit griechischen Wurzeln. Die Hauptthemen des Vereins sind Sport, Kultur, Integration und ehrenamtliches Engagement. Somit bietet das neue Vereinshaus neben sportlichen Aktivitäten wie z.B. dem Tanzen, auch die Möglichkeit bei der Integration von Familien & Jugendlichen mitzuwirken. Das Gebäude fügt sich mit seinen warmen Fassadenmaterialien wie Holz- und Putzflächen in die grüne Umgebung ein. Die Dachfläche wird als Gründach ausgeführt und trägt dazu bei, das Regenwasser zu einem großen Teil auf dem Grundstück zurückgehalten und natürlich verdunsten kann.

Nutzung
Fläche
Planung
Fertigstellung
Bauherr

Vereinshaus 
185 m2 BGF
LPH 1-5
2024
BW Ellas e.V.

zurück zur Projektübersicht